Me produserer ytterdører med mål og utforming etter dine ønskjer. Fyllingar av Tricoya blir kitta inn på same måte som me gjer med glasa.
Om ikkje anna er spesifisert, blir dørene levert med standard galvaniserte hengsler, blank sylinder med knappvridar innvendig og 3 nøklar.
Utadslåande ytterdører blir levert utan vridar.
Sjå bilete og informasjon om ulike tilval lenger nede.

Utadslåande 2-fløya ytterdør med spesialsprosser og friste fyllingar. Dørfargen er NCS 6711-G52Y, medan kittfals på fyllingar og glas er RAL 6007. Døra er levert med malte dråpehengsler og messing-sylinder.

Utadslåande 2-fløya ytterdør med dobbel slaglist og friste fyllingar. Farge RAL 6007. Galvaniserte dråpehengsler. Merk at utadslåande ytterdører blir levert utan vridar frå oss.

Utadslåande 1 1/2-fløya ytterdør med friste fyllingar og spesialsprosser. Merk at utadslåande ytterdører blir levert utan vridar frå oss.

Bua utadslåande ytterdør med frist fylling og malte standard hengsler

Utadslåande ytterdører med friste fyllingar og standard hengsler. Merk at utadslåande ytterdører blir levert utan vridar frå oss.

Utadslåande 2-fløya ytterdør med dobbel slaglist, overlys, friste fyllingar, malte standard hengsler og dekorglas "storstjerne".
- Fyllingar i Tricoya innvendig og utvendig.
- Fyllingar blir kitta inn på samme måte som glasset. Det er altså ikkje profilerte lister rundt fyllingar.
- Me anbefaler utvendig dørfarge i ein av fargane me har lagerført kitt til, for å unngå oppstartkostnad for spesialfarga kitt/ fugemasse. Lagerførte fargar er kvit (passar til dei fleste kvitfargar), svart, RAL 8016, RAL 6007, RAL 3009 og RAL 7024.
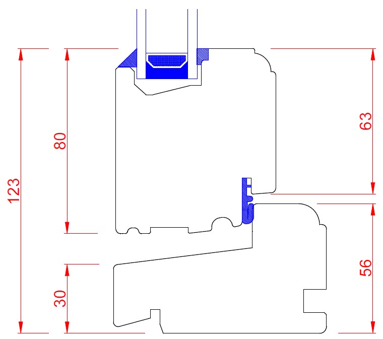
- Karm og ramme er fingerskjøtt malmfuru.
- Du kan velje om du vil ha frist/ profilert fylling, slett fylling eller spora fylling. Du kan velje ulik type fylling innvendig og utvendig.
- Du kan oppgi om du ønskjer 2- eller 3-lags glas.
- Slagretning oppgir du ved å beskrive om døra skal vere hengsla på høgre eller venstre side når du ser døra frå utvendig side. I våre tilbod er utadslåande dører teikna som sett frå utvendig side.
- Alle våre dører kan som utgangspunkt opnast 180 grader, men merk at dette er avhengig av korleis døra blir montert i veggen.
- For 2-fløya dører må du beskrive om det er høgre eller venstre dørblad som skal vere gangdør.
- Hugs å informere dersom brystning på dør skal tilpassast noko vindu som døra skal stå ved sidan av.
- Du kan be om likelåsande sylinder, dersom du ønskjer å bruke same nøkkel til fleire dører me leverer.
- Dersom ikkje anna er spesifisert, blir dør levert med 25 mm HC terskel i hardtre og aluminium.
- Dersom ikkje anna er spesifisert, blir utadslåande ytterdør levert med beslag som vist på bilder under.
- Utadslåande ytterdør blir levert UTAN vridar frå oss.
Standard galvaniserte hengsler Utvendig blank sylinder med 3 nøkler. UTEN vrider og skilt til vrider. Innvendig blank sylinder med knappvrider. UTEN vrider og skilt til vrider. 25 mm HC terskel i hardtre, innvendig side. HC-terskel utvendig side Hengsler
Standard galvaniserte hengsler. Kan leverast malt som dør.Dråpehengsler "Osloknop" - galvanisert eller malt som dør."Norgesknop" - galvanisert eller malt som dør."Norgesknop" - galvanisert eller malt som dør.Fyllingar
Slett fyllingFriste fyllingarSpora fyllingSpesialfylling frist med vertikale sporPå 2-fløya dører kan me levere dobbel slaglist om ønskjeleg. På bilete av dører i toppen her kan du sjå dører både med enkel og dobbel slaglist.Dobbel slaglist
Døme på dør med dobbel slaglist.Terskel
25 mm HC terskel i hardtre og aluminium (standard)56 mm hardtre terskel. Blir levert utan foringsnot om det ikkje er spesifisert at det skal vere med not (som på teikning).














